Горевший памятник архитектуры на Ришельевской реставрируют за счет города и собираются «украсить» частной мансардой   


Ремонтно-реставрационные и строительные работы ведутся в доме №11 по Ришельевской (угол Бунина), горевшем в феврале прошлого года.

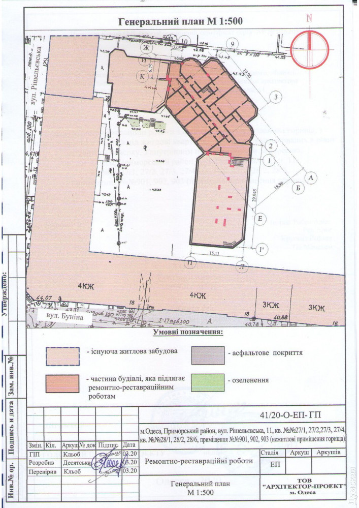
Как передает корреспондент «Думской», здание уже получило новую крышу, и сейчас рабочие занимаются дворовыми фасадами. Главные фасады пока не трогали.


Крыша уже готова. Главные фасады еще не трогали. Дом справа - Бунина, 18, он частично заброшен.
Крыша уже готова. Главные фасады еще не трогали. Дом справа - Бунина, 18, он частично заброшен.

В роли подрядчика ремонта фасада и крыши выступает компания «Строй-элит», которая должна получить из муниципального бюджета 12,6 млн грн. Первоначально она обязалась сдать объект до декабря 2020 года, но впоследствии с ней заключили дополнительный договор, продлив сроки выполнения работ на год.

Надо сказать, что эта и ряд других сделок между городским управлением капстроительства и «Строй-элит» заинтересовали правоохранительные органы. В декабре 2019-го полиция начала уголовное производство по ч. 5 ст. 191 УК Украины (присвоение, растрата имущества или завладение им путем злоупотребления служебным положением в особо крупных размерах). О подозрении, правда, пока никому не объявляли, хотя ряд имен в материалах фигурирует. По данным следствия, стороны завышали сметы работ и городу был нанесен серьезный ущерб. Судя по всему, именно действия правоохранителей затормозили реставрацию.

Параллельно с ней в здании ведется локальная реконструкция — за средства частной компании и физлиц. Недавно городское управление архитектуры выдало сразу два ГУО (градостроительные условия и ограничения) на проектирование объектов строительства.

Одни получило частное предприятие «32», которое в 2018 году купило у города помещение чердака площадью 1413,2 кв. м. Фирме разрешили произвести «реставрационные работы без изменения внешних геометрических размеров фундамента в плане, с внутренним перепланированием, с приспособлением под жилые цели, апартаменты и офисные помещения». Бенефициар «32» — некий Вадим Яновский, который на выборах 2015 года был наблюдателем от партии «Доверяй делам». Яновский имеет отношение еще к ряду фирм, занимающихся строительством в разных частях города.

Еще одни градостроительные условия и ограничения выдали группе физических лиц, владеющих квартирами №27/1, 27/2, 27/3, 27/4, 28/1, 28/2, 28/6 и нежилыми помещениями чердака №901, 902 и 903. Им дали добро на проектирование «реабилитации (ремонтно-реставрационных работ) нежилых помещений чердака с приспособлением под мансардный этаж для размещения жилых помещений и квартир, размещенных на уровне четвертого этажа с внутренним перепланированием».

Судя по всему, речь идет о всей верхней части внутреннего флигеля памятника архитектуры, работа на которой уже кипит.

Отметим, что именно там, в квартире №28, в феврале 2019 года и вспыхнул пожар. Тогда в мэрии заявили, что причиной возгорания были незаконные ремонтные работы.

В городском ГАСКе информацию подтвердили и сообщили, что еще в апреле 2018 года собственник на основании поддельных документов незаконно увеличил площадь квартиры, а затем продал ее. В июле новый собственник начал ремонтные работы, на которые тоже не было документов.

Напомним, пожар на Ришельевской, 11 произошел утром 22 февраля 2019 года. Горела крыша здания на площади 800 квадратных метров.

Во время пожара произошел взрыв газового баллона, в результате которого ушибы получил один сотрудник ГСЧС. Других пострадавших нет.

Спасатели вывели из горящего дома 40 человек, в том числе 12 детей. Огонь повредил две квартиры, еще 11 были залиты водой при тушении.

По информации Порто-Франковского ЖКС, это - уже второй пожар в данном доме за последние несколько лет.

Ришельевская, 11 - памятник архитектуры местного значения «дом доходный Баржанского». Был построен в 1873 году по проекту Феликса Гонсиоровского. Также является памятником истории (здесь в 1944-1969 году жил отоларинголог Гешелин). Входит в состав комплекса из двух зданий «Ришельевская, 11 - Бунина, 18».

 
СМЕРТЬ РОСІЙСЬКИМ ОКУПАНТАМ!
Эскиз будущей мансарды
Эскиз будущей мансарды









Горевшая часть дома закрыта тканью. Там будет мансарда
Горевшая часть дома закрыта тканью. Там будет мансарда

Февраль 2019 года
Февраль 2019 года

Февраль 2019 года. Здесь хорошо видно, что строительство мансарды велось уже тогда - незаконно
Февраль 2019 года. Здесь хорошо видно, что строительство мансарды велось уже тогда - незаконно























Обратите внимание: второе ГУО было выдано на следующий день
Обратите внимание: второе ГУО было выдано на следующий день



Помітили помилку? Виділяйте слова з помилкою та натискайте control-enter


Новини по цій темі:





nic6262
Странно что там ещё не торчит надцатиэтажный бизнес центр)) наверное ручки у мэрии не дошли, пилят в первую очередь побережье))
   Відповісти    
Евстрастий
В нормальной легкой мансарде нет ни чего плохого, они были на многих домах до 50-х годов. До революции это было дешевое съемное жилье, потом при починке крыши их убирали. Если с умом делать, то все нормально выглядит. Весь Париж в мансардах разных лет переделки и достройки, я даже пару раз в таких жил, вполне хорошо.
   Відповісти    
nic6262
Ключевое слово с Умом) У нас же другая религия — скока Дашь за техусловия))
   Відповісти    
Евстрастий
Это да).
   Відповісти    
   Правила



23 квітня
08:38 Кадровий колапс: «Одесміськелектротранс» шукає всіх, поки колектив розбігся через низькі зарплати?
22 квітня
22:01 Системна безкарність і корупція: в Одеській області зросла кількість скарг на ТЦК
14
20:13 SHUMEI в Одесі: вечір наповнений світлом, емоціями та відчуттям справжнього єднання (на правах реклами)
18:59 Повернуться в онлайн і зможуть викликати поліцію: одеські трамваї та тролейбуси оснастять новими GPS-трекерами — з кнопками тривоги
5
17:00 В області зафіксували заморозки: що чекає на Одесу?
16:02 Вину не визнають: ВАКС розпочав розгляд по суті справи голови Одеської облради та його дружини-нардепа
35
14:19 Фабрика відходів: Одеса витрачає мільйони на шкільне харчування, але половина страв потрапляє на звалище фотографии
23
12:07 Смертельна аварія в Болгарії: автобус з одеською реєстрацією наїхав на своїх пасажирів, двоє загинули фотографии
5
10:26 Кілер під виглядом сусідки: в Одесі затримали агентку росії, яка готувала вбивство офіцера ССО фотографии
24
08:14 Масована атака на Одесу: пошкоджено портову інфраструктуру та суховантаж(оновлено)
5
21 квітня
22:00 Камбала з Привозу, 50 відтінків чорного та варення в мідній мисці: одеська Молдаванка в малюнках (фото) фотографии
5
20:26 Скандал із вимаганням у ТЦК: що про це думають одесити та які нові деталі розкрила СБУ (відео) видео
38
19:41 Більше відкриваються, ніж згортаються: Одеська область — у топі за кількістю нових підприємців
17:25 Чотири роки допомоги: благодійний фонд «Ваше місто» провів донорську акцію в Одесі (суспільство) фотографии
1
15:32 Відсторонили начальника ТЦК та його заступника: Сирський відреагував на гучний скандал в Одесі (оновлено)
64




Статті:

Одесский косплей Фарион: когда „патриотизм“ становится бронью от реальности (колонка)

Самая грустная Юморина: за чаем с факиром о бензине во рту, шрамах и друзьях, которые не вернутся

Жизнь после отопительного сезона: почему когенерация стала криминальной, как повзрослеть инфантильным одесситам и учимся ли мы на энергофейлах





08:59
Сбили
21


08:57
Развернулся в море
27102


08:57
Таирова/Черемушки


08:50
Дрон в районе 411
7631


08:50
Увага. ПОВІТРЯНА ТРИВОГА
1


08:19
Сегодня может быть затруднено движение на некоторых улицах города

Ремонтные работы запланированы на улицах:

Читать дальше

07:51
ВІДБІЙ повітряної тривоги
5942


07:45
Снова не фиксируется
42102111


07:41
Порт/Пересыпь/Лузановка внимательно
675









Думська в Viber
Ми використовуємо cookies    Ok    ×